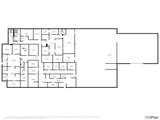
Description
Multi-use flex space that could be packaged with adjacent buildings. This building features 19,664 sq ft of combined space with approximately 9,000 office and the remainder used for warehouse & manufacturing. The office has over a dozen private offices, several conference rooms, break room, training room, IT server room, and tons of co-working spaces. Warehouse features drive-in doors, high ceilings, all utilities, secured access & a crane system. Let your business grow here!
-
0BEDS
-
0.79ACRES
-
4BATHS
-
01/2 BATHS

Description
Multi-use flex space that could be packaged with adjacent buildings. This building features 19,664 sq ft of combined space with approximately 9,000 office and the remainder used for warehouse & manufacturing. The office has over a dozen private offices, several conference rooms, break room, training room, IT server room, and tons of co-working spaces. Warehouse features drive-in doors, high ceilings, all utilities, secured access & a crane system. Let your business grow here!
Related Properties
The data relating to real estate for sale on this website comes in part from the Broker Reciprocityâ„¢ program of the Multiple Listing Service of Greater Cincinnati. Real estate listings held by brokerage firms other than Apex Group | Keller Williams are marked with the Broker Reciprocityâ„¢ logo (the small black house) and detailed information about them includes the name of the listing brokers. IDX information is provided exclusively for consumers' personal, non-commercial use and may not be used for any purpose other than to identify prospective properties consumers may be interested in purchasing. Information is deemed reliable but is not guaranteed accurate by the MLS or Apex Group | Keller Williams.
Data last updated 2026-02-12T00:13:32.647.