Description
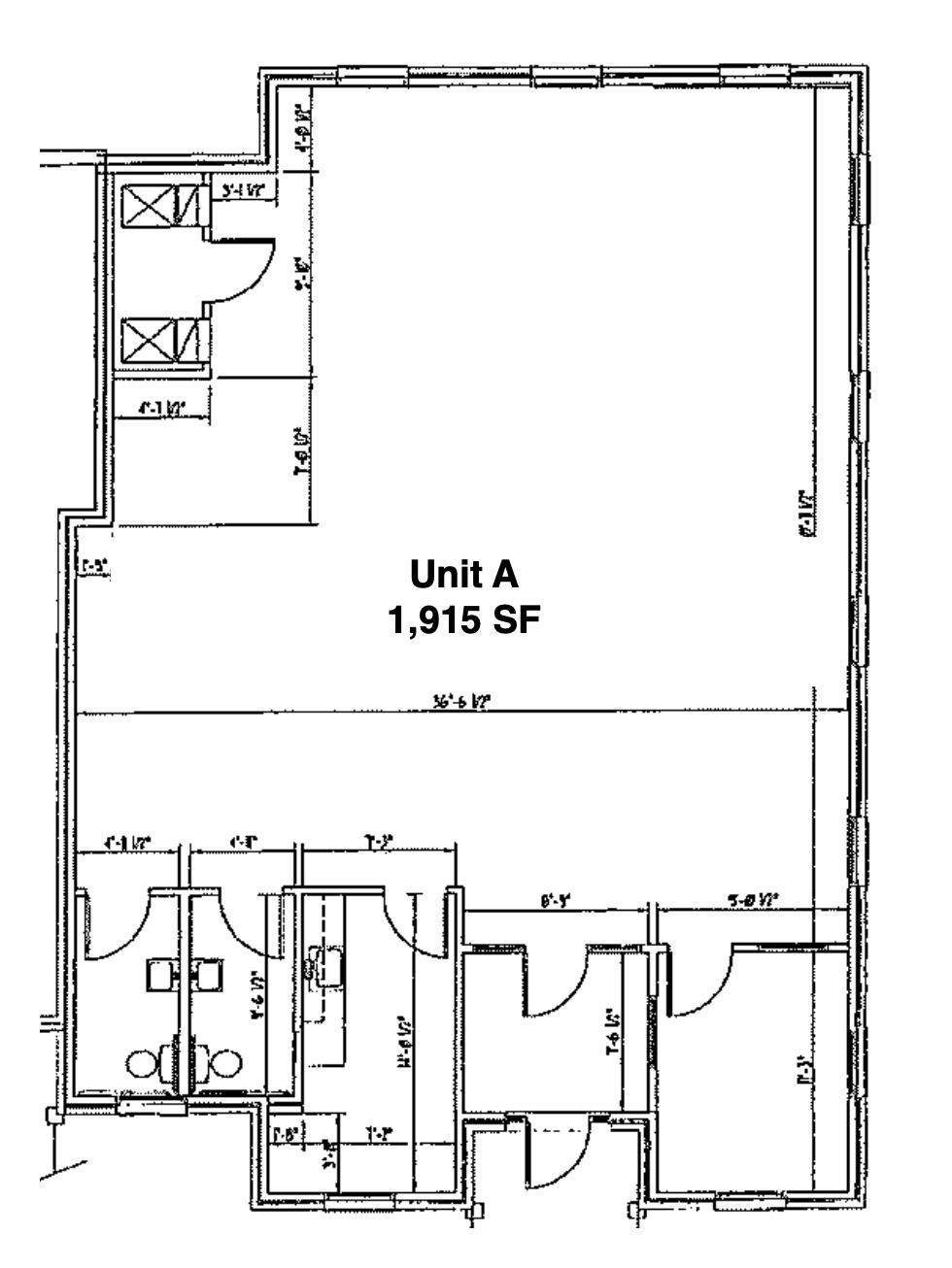
1,915 SF professional office condo on the first floor. End-cap unit w/ secured private entry. Open floor plan with private office, kitchenette & two restrooms. Great location in the fast growing city of Hamilton with new commercial and residential developments. Ideal uses: medical, legal, real estate, insurance, or counseling/therapy services. Occupancy 60 day notice. Offered at $11-$13 PSF NNN. OpEx are $3.04 PSF.
-
0BEDS
-
N/AACRES
-
0BATHS
-
01/2 BATHS
School Ratings & Info

Description
1,915 SF professional office condo on the first floor. End-cap unit w/ secured private entry. Open floor plan with private office, kitchenette & two restrooms. Great location in the fast growing city of Hamilton with new commercial and residential developments. Ideal uses: medical, legal, real estate, insurance, or counseling/therapy services. Occupancy 60 day notice. Offered at $11-$13 PSF NNN. OpEx are $3.04 PSF.
The data relating to real estate for sale on this website comes in part from the Broker Reciprocity™ program of the Multiple Listing Service of Greater Cincinnati. Real estate listings held by brokerage firms other than Apex Group | Keller Williams are marked with the Broker Reciprocity™ logo (the small black house) and detailed information about them includes the name of the listing brokers. IDX information is provided exclusively for consumers' personal, non-commercial use and may not be used for any purpose other than to identify prospective properties consumers may be interested in purchasing. Information is deemed reliable but is not guaranteed accurate by the MLS or Apex Group | Keller Williams.
Data last updated 2025-12-14T23:13:33.513.